Line up(S-18B)

S-18B
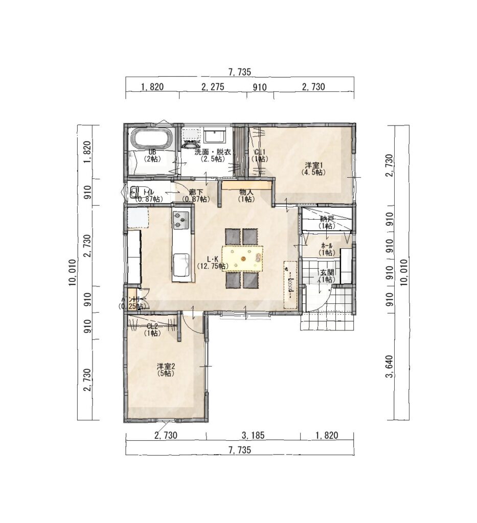
2LDK/17.37坪
本体価格
980万円
本体価格+付帯工事
1,410万円(430万円)
消費税込み
税込1,551万円
※標準工事およびセット付帯工事に含まれる主なもの
●標準工事
システムキッチン・ユニットバス・洗面台・トイレ(紙巻器、タオル掛け)・玄関収納 ほか
●セット付帯
エコジョーズ・屋外給排水工事・照明器具(ダウンライトのみ)・電気工事・屋外仮設工事・設計管理費
・地盤調査費・瑕疵担保保険・確認申請費(市街化区域内)ほか
※上下水道引込工事、小運搬費用、開発行為、農地転用、その他条例に係る申請などは別途



